안녕하세요, 경매아라누리 운영하는
리치인베스트 선임이사 최호규입니다.
오늘 소개해드릴 물건은
서울시 강남구 삼성동에 위치한
삼성월드타워 아파트 입니다.

서울시 강남구 삼성동
월드타워 아파트 경매 사건은
1차 감정가 1.870.000.000원에
진행26년01월15일(유찰되어)
2차 최저가 1.496.000.000원에
26년02월26일진행될 예정입니다.
사건번호 2025타경102620
서울시 강남구 삼성동에 소재하는
'강남구청'서측 인근에
위치하는 월드타워아파트에 9층
(전유면적 84㎡)28평형 입니다.
☆월드타워 아파트 단지 정보☆

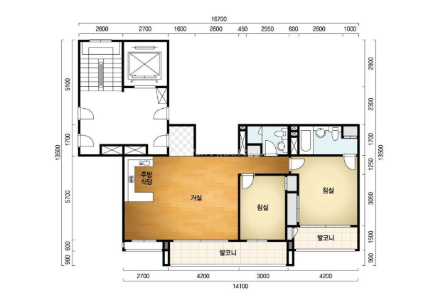
방2, 욕실2, 거실, 주방/식당, 발코니,등
구조이며 28평형 입니다.
감정가는 1.870.000.000
최저가는 1.496.000.000
●현장사진●





★월드타워 아파트 지역분석 자료 입니다★
|
역세권
|
ㆍ7호선 청담 333m ㆍ7호선 강남구청 652m ㆍ수인분당선 강남구청 669m ㆍ9호선 삼성중앙 687m ㆍ수인분당선 선정릉 872m
|
|
공공
|
ㆍ강남구청(124m)
|
|
교육
|
ㆍ강남구청 직장어린이집(72m) ㆍ현대키즈어린이집(111m) ㆍ아이큰숲어린이집(138m) ㆍ민성원연구소(163m) ㆍ리드101 삼성캠퍼스(169m) ㆍ위더스영어학원(171m) ㆍ스킬펜싱클럽(225m) ㆍ대성다수인 삼성점(240m) ㆍ아마로즈음악학원(256m) ㆍ청담몬테소리유치원(257m)
|
|
교통
|
ㆍ강남구청 주차장(84m) ㆍ강남구청 구청부설2공영(86m) ㆍ청담서울클리닉 주차장(115m) ㆍ우리들병원 본관주차장(168m) ㆍ제동빌딩 주차장(220m) ㆍ삼화 와이즈지하주차장(226m) ㆍ대륭빌딩 주차장(246m) ㆍ보라빌딩 주차장(267m) ㆍ삼성벽산블루밍아파트 101동주차장(322m) ㆍ강남구청 삼성로별관 주차장(342m)
|
|
금융
|
ㆍ우리은행 강남구청출장소(69m) ㆍIBK기업은행365 강남구청점365(126m) ㆍIBK기업은행 강남구청지점(131m) ㆍ신한은행 강남구청지점(163m) ㆍ우리은행 365코너 우리들병원(168m) ㆍ신한은행 청담역지점(193m) ㆍ신한은행ATM 청담동점내(207m) ㆍ하나은행 서청담지점(220m) ㆍKB국민은행ATM 청담역점(229m) ㆍKB국민은행 청담역지점(232m)ㆍCU ATM 청담블루밍점(329m) ㆍ청담동새마을금고 본점(490m)
|
|
생활
|
ㆍ강정이넘치는집 청담점(111m) ㆍG&B청담공인중개사사무소(120m) ㆍ노아베이커리 강남구청점(174m) ㆍ피양옥(190m) ㆍ화평칼국수(200m) ㆍ현대힐스테이트공인중개사사무소(205m) ㆍ한솔부동산(207m) ㆍ마왕족발 삼성점(215m) ㆍ라온부동산중개(220m) ㆍ청담하게(237m)
|
|
쇼핑ㆍ음식
|
ㆍCU 청담청아점(120m) ㆍGS25 강남청담점(129m) ㆍCU 삼성현대점(168m) ㆍGS25 청담우리본점(233m) ㆍCU JJ상아점(240m) ㆍCU 삼성아이파크점(240m) ㆍGS25 삼성한울점(272m) ㆍ노브랜드 강남삼성점(279m) ㆍ세븐일레븐 강남청담점(291m) ㆍCU 청담진흥점(303m)
|
|
숙박
|
ㆍ케이걸게스트하우스(255m)
|
|
의료
|
ㆍ휴피부과(113m) ㆍ한세성모안과(114m) ㆍ청담 서울이비인후과의원(114m) ㆍ생명샘약국(114m) ㆍ소리이비인후과 본원(115m) ㆍ청담아이윌동물병원(120m) ㆍ청담별빛약국(141m) ㆍ우리들병원 청담(166m) ㆍ타조약국(185m) ㆍ청담수약국(193m)
|

삼성월드타워
서울특별시 강남구 학동로 408

'아파트,주상복합' 카테고리의 다른 글
| 서울 은평구 구산동 382 갈현현대 104동 4층 (1) | 2026.01.27 |
|---|---|
| 서울 은평구 신사동 354 ,354-1 라이프씨티 101동 6층 (1) | 2026.01.27 |
| 서울 동대문구 전농동 6 ,6-1 전농우성 11동 7층 (0) | 2026.01.27 |
| 서울 금천구 시흥동 1010 벽산 116동 15층 (0) | 2026.01.26 |
| 서울 마포구 연남동 564-35 리츠 4층 (1) | 2026.01.26 |